068
Ausbau MOH
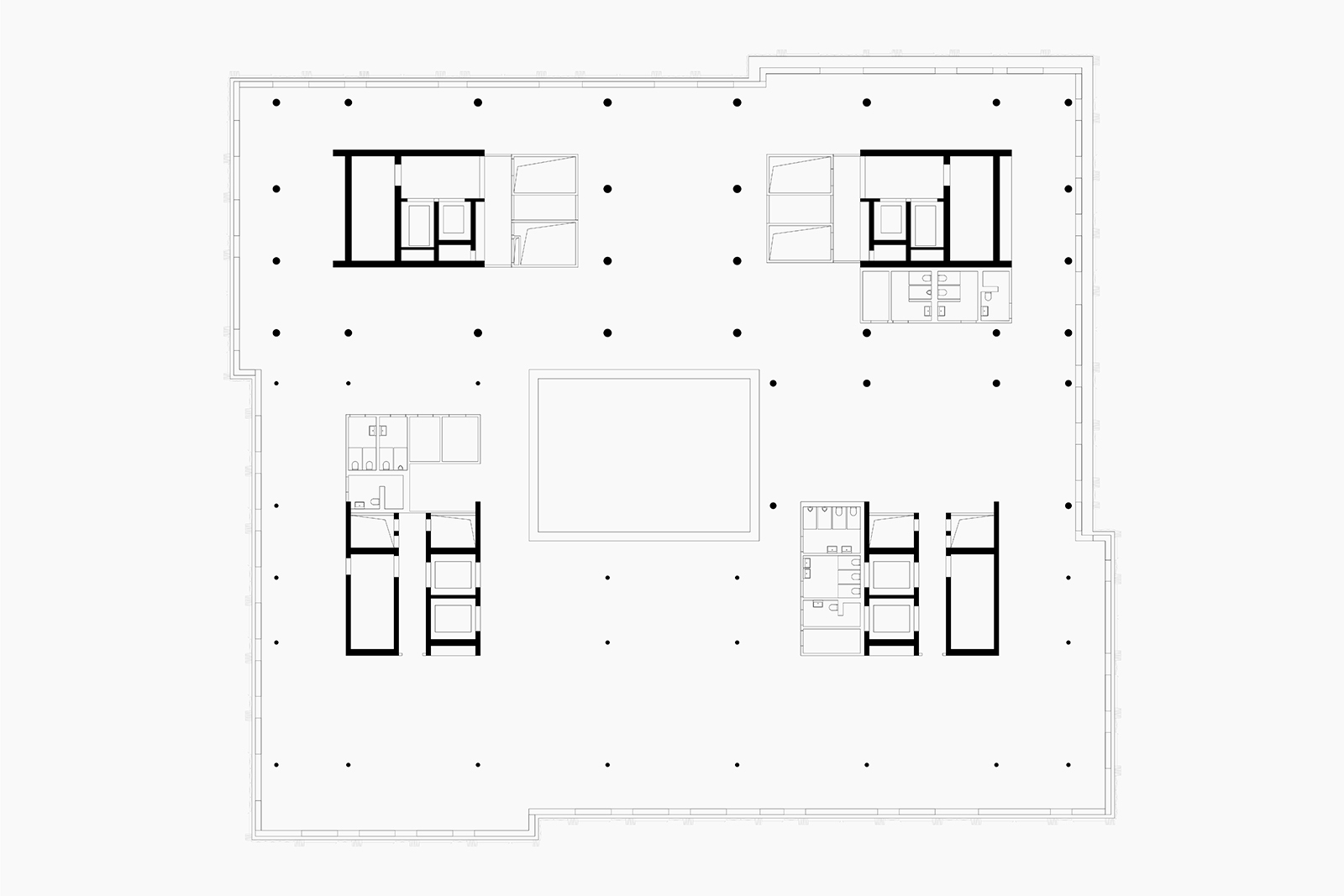
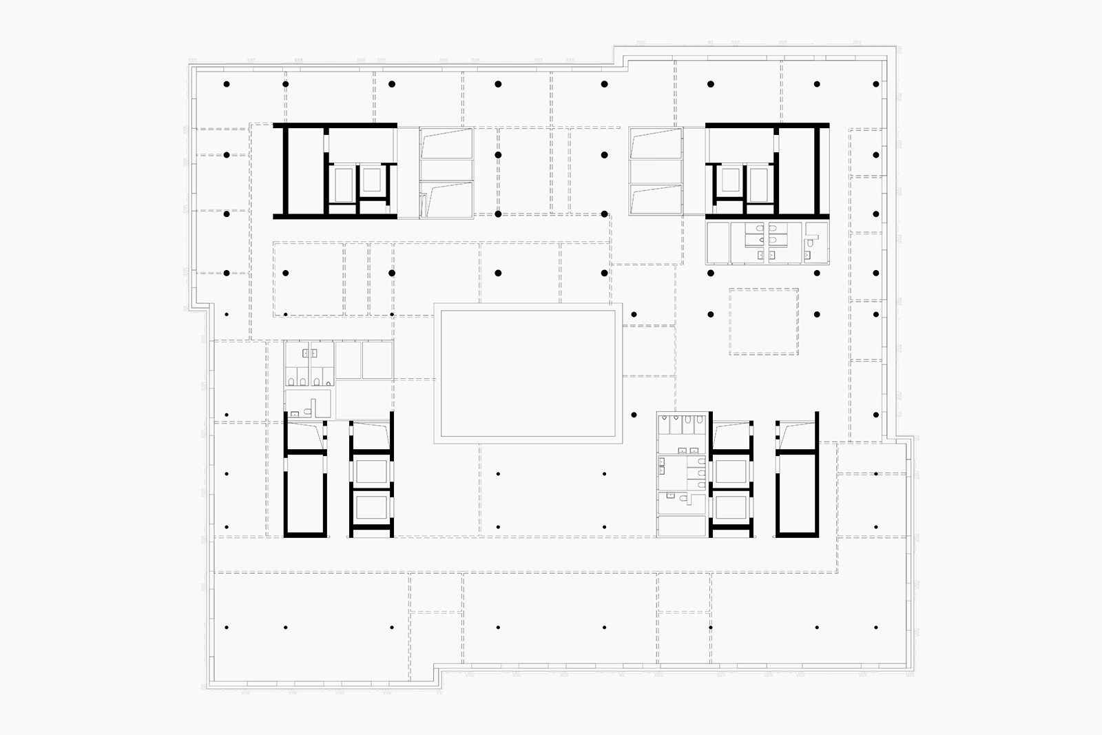
Der Ausbau des 4. Obergeschosses im Meret Oppenheim Hochhaus am Bahnhof Basel SBB zu einer flexiblen Bürolandschaft wird geprägt durch den Wunsch eines dauerhaft variierenden Ausbaus. Der baulichen Flexibilität geschuldeten Schicht der komplex optimierten Technik wird ein Deckenmuster überzogen, welche das Geschoss als prägendes Stilmittel miteinander verwebt. Sämtliche Infrastruktur des Geschosses kann langfristig auf 160 Wandposition reagieren. Als Ankerpunkte wurden Küchen und Nasszellen definiert.

Pläne

Pläne

Pläne

Pläne

Pläne

Pläne

Pläne

Pläne

Baustelle

Baustelle

Baustelle

Baustelle

Baustelle

Baustelle
Bauherr: SBB Immobilien
Team: Caesar Zumthor, Serafin Winkler
Ausführung: 2019
Fotos: Valentin Jeck






