070
Tropeninstitut
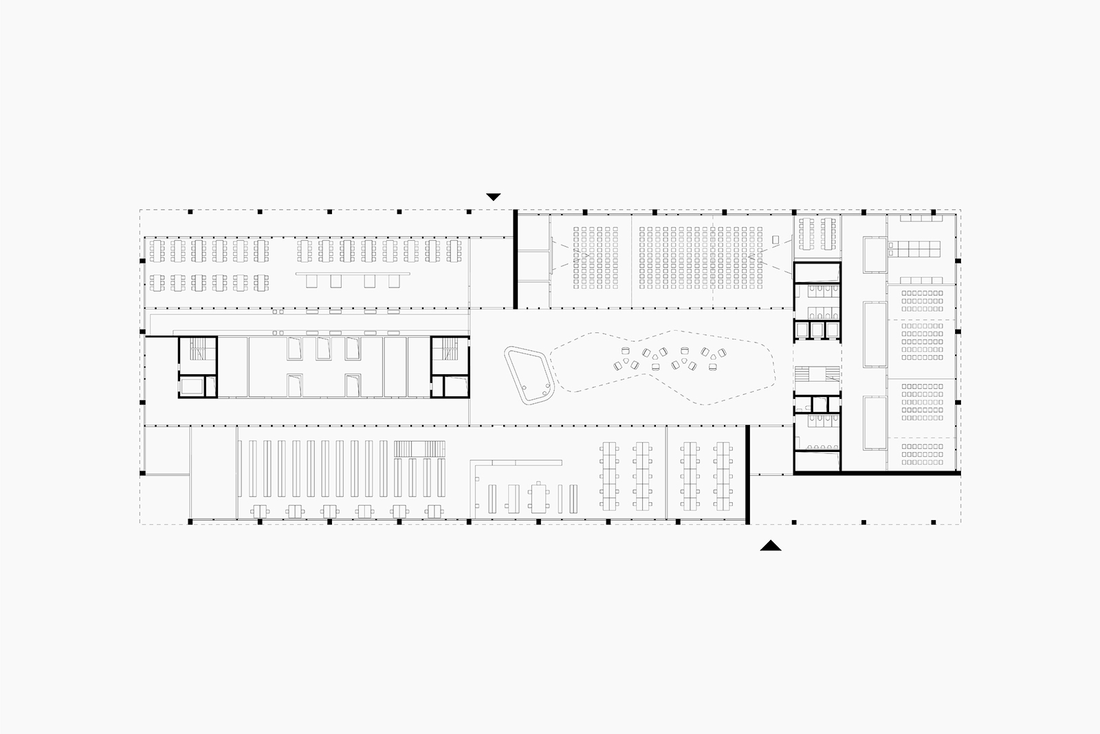
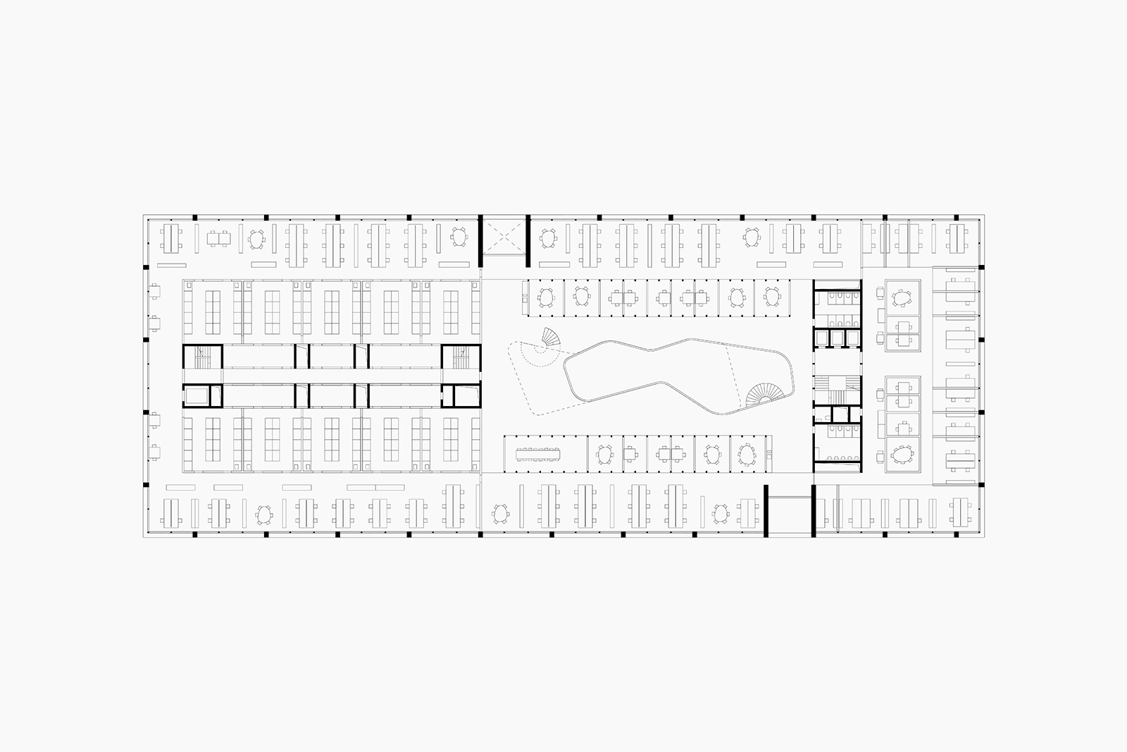
Das Volumen besetzt als markanter Baukörper die Eckparzelle und definiert einen angemessenen Auftakt in schlüssiger Gliederung entsprechend dem zugrundegelegten Masterplan, als auch die Erschliessung des dahinterligenden Freiraums. Zwei gleichwertige Zugänge ermöglichen eine öffentliche Durchwegung. Die einfache Strukturierung des Gebäudes überträgt sich in die Fassadengestaltung. Aussenliegende tragende Stützen formen sich mit den Brüstungsbändern zu einem monolithischen Netz. Das umlaufende Ortbetongeflecht wird lediglich durch die zweigeschossigen Balkone unterbrochen, an welchen sich die Rasterbreite verjüngt. Dadurch werden die beiden Zugänge zusätzlich artikuliert, welche sich im Erdgeschoss über Kolonnaden abzeichnen. Dadurch wird die Idee der öffentlichen Durchwegung im Erdgeschoss wird verstärkt. Das Projekt bietet den Mitarbeitenden, Studierenden, Lehrenden, Forschenden einen gemeinsamen, interdisziplinären Lebens- und Studienraum. Die gemeinsame mehrgeschossige Kommunikationszone und die hohe Transparenz im Gebäudeinnern soll die Kollaboration fördern. Blickbeziehungen, eine einfache Orientierung, informeller Austausch und interdisziplinäre Arbeit werden so optimal ermöglicht und verleihen dem Gebäude den Charakter einer modernen Universitäts- und Forschungslandschaft. Das frei geformte Atrium ist das Zentrum und der departementsübergreifende Treffpunkt des Gebäudes.

Pläne

Pläne

Pläne

Pläne

Pläne

Modell

Modell
Team: Caesar Zumthor, Kaspar Kappeler
Wettbewerb: 2018, 3er Preis
Arge: Markus Stern Architekten
Visualisierung: Aron Lorincz
Wettbewerb: 2018, 3er Preis
Arge: Markus Stern Architekten
Visualisierung: Aron Lorincz



